燃油汽锅炉

详情介绍


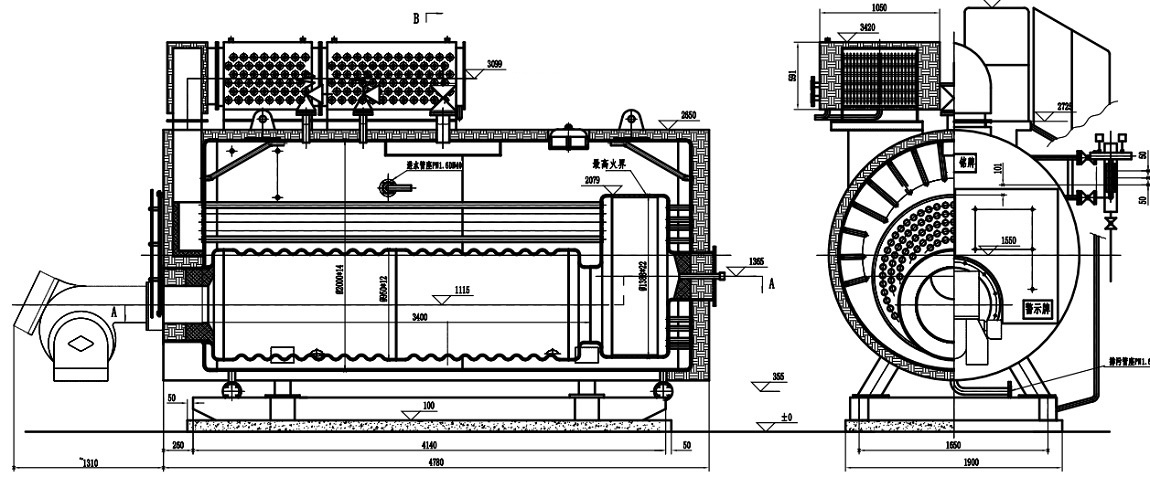
燃气蒸汽锅炉是我集团公司引进德国技术,根据技术和经验设计而成的锅壳式三回程湿背燃油(气)锅炉。锅炉运行自动化,燃料经燃烧器雾化后,形成的火炬充满在全波形炉胆内,并通过炉胆壁传递福射热,此为回程。燃烧产生的高温烟气在回燃室内汇聚,转向进 入*二回程,即螺烟管管束区,经对流热换后,烟气温度驢逐渐降低至前烟箱,并在此转向进入第三回程,即光管管束区,随后烟箱流入烟囱,*后排入大气。

  该系列产品具有安*、*效率、节能环保、维护方便,经久耐用、全自动智能控制等特点;均经特检院热能测试**能效测式,各项性能指标 均高于设计要求,已达到燃气冷凝蒸汽锅炉水平


性能优势


1. 卧式全湿背结构,整体布置紧凑,美观大方。

  2. 外置一体化翅片管式省煤器、外置独立式冷凝器,结构紧凑、方便维护。

  3. 采用合理的受热面结构设计,有效控制烟气阻力。

  4. 采用变频给水及控制技术,确保烟气中水蒸汽的冷凝率。

  5. 冷凝器采用“耐硫酸低露点腐蚀"专用钢材.大幅提高使用寿命°

  6. 采用可编程逻辑控制器(PLC)与触摸屏相结合并加装按钮实现手动和自动双路智能化的控制系统。

  7. 设有**的在线帮助、多级中文弹出式菜单和故障维修指南,极大地方便了用户操作维护。

  8. 全方碰**连锁保护功能,确保锅炉****运行。

  9. 可编程逻辑控制器(PLC)充足的预留端口和积木式的扩充模块,可实现群控、远程监控和楼宇控制,对用户特殊需要的幵 发减少了重复投资。

  10. 多台锅炉联网使用,无须设置主控制台即可自动选择锅炉运行台数和分配每台锅炉的负荷。


技术参数



型号规格额定蒸发量
(T/h)
额定工作压力
(Mpa)
饱和蒸汽温度
(℃)
氮氧化物
(Mg/M3)
设计燃料*大运输重量
(KG)
*大运输尺寸
(MM)
WNS1-1.25-YQ11.0
1.25
1.6
2.5
184
194
204
225
18-30天然气
轻油
重油
48003200x1800x2000
WNS2-1.25-YQ272003800x1900x2200
WNS3-1.25-YQ3100004100x2000x2400
WNS4-1.25-YQ4124004400x2300x2600
WNS6-1.25-YQ6160005300x2400x2700
WNS8-1.25-YQ8215006800x2600x3000
WNS10-1.25-YQ10260006300x2700x3200
WNS12-1.25-YQ12310006700x2700x3200
WNS15-1.25-YQ15400008700x3700x3500
WNS20-1.25-YQ20486008050x3750x3950


河南省金弘锅炉有限公司

服务热线:15346077677   联系人:刘经理

地址:河南省周口市太康县大许寨乡周庄行政村  

豫ICP备2025120703号    免责声明